ads/responsive.txt

Dimension Coussin Berlinois

Coussin Lyonnais De Voirie Coussin Lyonnais Ralentisseur

Coussin Lyonnais De Voirie Coussin Lyonnais Ralentisseur

Ralentisseur Berlinois Coussin Ralentisseur Ralentisseur Coussin

Ralentisseur Berlinois Coussin Ralentisseur Ralentisseur Coussin

Coussin Berlinois Wikipedia

Coussin Berlinois Wikipedia

Coussin Berlinois 6 Elements Conforme Aux Directives Cerema

Coussin Berlinois 6 Elements Conforme Aux Directives Cerema

Choisir Ses Ralentisseurs De Vitesse Pour Voies De Circulation

Choisir Ses Ralentisseurs De Vitesse Pour Voies De Circulation

Fichier Coussin Berlinois En Caoutchouc Vulcanise Jpg Wikipedia

Fichier Coussin Berlinois En Caoutchouc Vulcanise Jpg Wikipedia

Fichier Coussin Berlinois En Caoutchouc Vulcanise Jpg Wikipedia

Du 31 05 2002 la face visible est réalisée à base de ciment blanc d agrégats de quartz de teinte blanche.

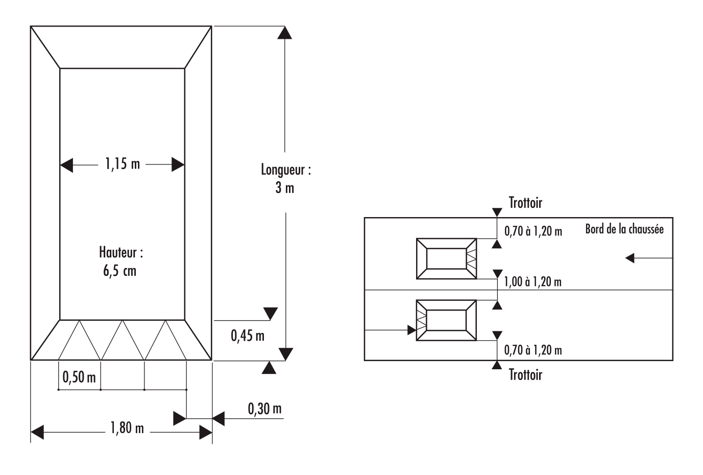
Dimension coussin berlinois. Coussin berlinois en caoutchouc coussin berlinois rouge noir beige ou rouge beige au choix longueur 2 ou 3 mètres largeur 1 80m épaisseur 6 5 cm. Le coussin berlinois est très utilisé en zone urbaine il permet de faire ralentir les véhicule. Les dimensions sont. Comment est réglementée l utilisation des coussins berlinois.

Du 31 05 2002 la face visible est réalisée à base de ciment blanc d agrégats de quartz de teinte blanche. Depuis 2009 les coussins berlinois neufs ou existants doivent être conforme à la norme nf en 13036 4 et ainsi respecter une mesure d adhérence srt d au moins 0 45. Coussin berlinois les coussins berlinois prossed sont constitués de 6 éléments en caoutchouc de couleur rouge brique ou noir sur demande. Coussin berlinois zone 50 km 3 00 x 1 75 x 0 28m coussin berlinois suivant la circulaire ministérielle relative aux dispositifs surélevés destinés à limiter à 50 km h et aux coussins.

De par sa. Le guide des coussins et plateaux recommande un suivi et un entretient régulier de ce type d équipement avec notamment une surveillance de l évolution de l adhérence de surface durant toute la durée de vie du coussin la. Longueur 3 00 mètres largeur 1 80 m hauteur 6 50 cm. Le coussin berlinois est une surélévation implantée sur chaussée qui à la différence d un dos d âne ne s étend pas sur toute la largeur de la chaussée.

Coussins berlinois 30 km h coussin berlinois zone 30 km h 1 75 x 1 75 x 0 28m coussin berlinois suivant la circulaire ministérielle relative aux dispositifs surélevés destinés à limiter à 30 km h et aux coussins. Contrairement aux dos d ânes il ne s étend pas sur toute la chaussée. Le coussin berlinois permet ainsi aux véhicules de transports en commun et aux deux roues de pouvoir le franchir sans subir l effet de surélévation la partie droite de la chaussée étant dégagée d obstacle. Dans certaines communes les équipements de voirie sont surdimensionnés afin de les rendre plus efficaces sans tenir compte de la réglementation en vigueur.

Coussins berlinois 30 km h coussin berlinois zone 30 km h 1 70 x 1 75 x 0 28m coussin berlinois suivant la circulaire ministérielle relative aux dispositifs surélevés destinés à limiter à 30 km h et aux coussins. Coussin berlinois zone 50 km h 3 00 x 1 75 x 0 28m coussin berlinois suivant la circulaire ministérielle relative aux dispositifs surélevés destinés à limiter à 50 km h et aux coussins. Le coussin berlinois ne fait pas l objet de réglementation spécifique si les ralentisseurs de type dos d âne et. Les coussins berlinois notamment sont des dispositifs en caoutchouc de forme trapézoïdale dont l amorti oblige les conducteurs à ralentir.

Coussin Berlinois Manutan Collectivites

Coussin Berlinois Manutan Collectivites

Viso Co3r Coussin Berlinois Rouge Amazon Fr Bricolage

Viso Co3r Coussin Berlinois Rouge Amazon Fr Bricolage

Coussin Berlinois Modele Europeenne En Caoutchouc Traffic Shop

Coussin Berlinois Modele Europeenne En Caoutchouc Traffic Shop

Coussin Berlinois Reglementation Certu

Coussin Berlinois Reglementation Certu

Ralentisseur Coussin Berlinois Or Equipement

Ralentisseur Coussin Berlinois Or Equipement

Abri Bus Cassis Station De Bus Mobilier Urbain Amenagement Urbain

Abri Bus Cassis Station De Bus Mobilier Urbain Amenagement Urbain

Coussin Berlinois Ses Fixations A 669 00 Ht

Coussin Berlinois Ses Fixations A 669 00 Ht

Mobilier Urbain Banc Public En Bois Burgos Banc Public Bois Et

Mobilier Urbain Banc Public En Bois Burgos Banc Public Bois Et

Banc En Bois Seville Banc Urbain Bois Et Fonte Mobilier Urbain

Banc En Bois Seville Banc Urbain Bois Et Fonte Mobilier Urbain

Ten Standard Dining Room Table Size That Had Gone Way Too Far

Ten Standard Dining Room Table Size That Had Gone Way Too Far

Agencement Oreillers Avec Images Decoration Lit Chambre A

Agencement Oreillers Avec Images Decoration Lit Chambre A

Dispositifs Ralentisseurs Les Coussins Securotheque De Wallonie

Dispositifs Ralentisseurs Les Coussins Securotheque De Wallonie

Table De Pique Nique Pmr Table Forestiere En Bois Table En Bois

Table De Pique Nique Pmr Table Forestiere En Bois Table En Bois

Banc Public En Fer Plat Banc Public En Fer 120 Ou 200 Cm Banc

Banc Public En Fer Plat Banc Public En Fer 120 Ou 200 Cm Banc

Le Coussin Berlinois Pargom Le Ralentisseur De Trafic Qui

Le Coussin Berlinois Pargom Le Ralentisseur De Trafic Qui

The Raleigh Sofa Is A Modern Armchair With An Expressed Hardwood

The Raleigh Sofa Is A Modern Armchair With An Expressed Hardwood

Panneau Type B Signalisation De Fin D Obligation

Panneau Type B Signalisation De Fin D Obligation

Ce Que Vous Pouvez Faire Lorsque Le Ralentisseur Est Place Trop Haut

Ce Que Vous Pouvez Faire Lorsque Le Ralentisseur Est Place Trop Haut

Ralentisseur Routier Hauteur 50mm Pour Zone 30 Des 12 45 Ht

Ralentisseur Routier Hauteur 50mm Pour Zone 30 Des 12 45 Ht

Banc En Bois Exotique Exterieur Banquette D Exterieur En Bois Bastide

Banc En Bois Exotique Exterieur Banquette D Exterieur En Bois Bastide

Banc En Bois Exterieur Banc Public En Bois Et Fonte Barcelone

Banc En Bois Exterieur Banc Public En Bois Et Fonte Barcelone

Association Debange Houdon Effets Destructeurs D Un Ralentisseur

Association Debange Houdon Effets Destructeurs D Un Ralentisseur

Banc Pour Ecoliers En Bois Et Metal Banc Scolaire Banc Pour

Banc Pour Ecoliers En Bois Et Metal Banc Scolaire Banc Pour

Arret De Bus Et Station Conviviale

Arret De Bus Et Station Conviviale

Source : pinterest.com